
Loenen aan de Vecht
Bijgebouw
J - Z_9025
Tuinkamer & wellness Loenen aan de Vecht
Een elegante tuinkamer met grasdak in Loenen aan de Vecht: een transparante structuur van glas en aluminium, gekoppeld aan een compacte wellness met sauna en stoombad in het bestaande bijgebouw.
Hoe voeg je een tuinkamer met wellness toe die niet als "bijgebouw" voelt, maar als een vanzelfsprekend onderdeel van de tuin
Veel tuinkamers ogen zwaar of schuurachtig en hebben te weinig relatie met het groen, terwijl wellness vaak inefficiënt wordt ingedeeld.
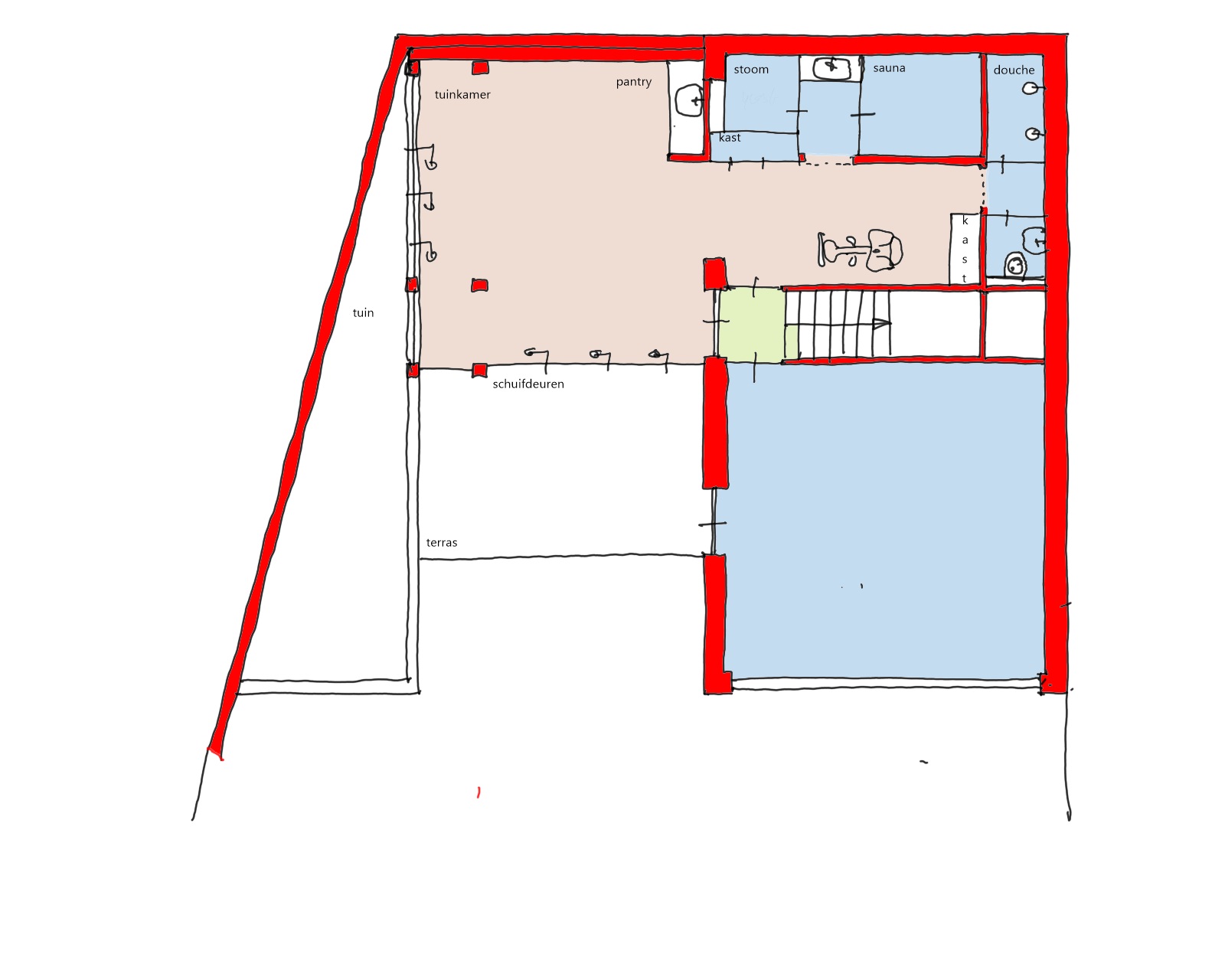
Een transparante tuinkamer van glas en aluminium met grasdak, gekoppeld aan een compacte wellness in het bestaande bijgebouw met sauna, stoombad en sanitair.
Een serene ontspanningsplek aan huis met sterke binnen-buitenbeleving en een tuinintegratie die het geheel rust en kwaliteit geeft.
Bij deze woning in Loenen aan de Vecht is een bestaand bijgebouw uitgebreid met een eigentijdse tuinkamer en een compacte wellness. Het ontwerp is bewust geen "houten schuur" in de tuin, maar een lichte, elegante structuur van glas, aluminium en een grasdak - gemaakt om het buitenleven te versterken en de tuin als hoofdrolspeler te laten voelen. De tuinkamer is opgezet als transparante ruimte met glazen schuifpuien en een slank draagprincipe. De constructie is verfijnd gedetailleerd en houdt het zicht naar groen en lucht maximaal open. Door de tuinkamer niet letterlijk langs de randen van de tuin te leggen, maar vrijer te positioneren, ontstaat er een natuurlijke integratie: de kamer voelt als onderdeel van de tuin, niet als een losse toevoeging. De wellnessfuncties bevinden zich in het bestaande gebouw. In een kleine maar zeer efficiënte indeling zijn sauna, stoombad en sanitair ondergebracht. Samen met de relaxruimte in de tuinkamer vormt dit een complete plek voor rust en herstel - een comfortabele overgang tussen binnen en buiten, direct verbonden met het groen. Het resultaat is een hoogwaardige tuinkamer met wellness aan huis: licht, elegant en landschappelijk ingepast, met een architectuur die ingetogen blijft maar sterk aanwezig is in beleving.
Hoe voeg je een tuinkamer met wellness toe die niet als "bijgebouw" voelt, maar als een vanzelfsprekend onderdeel van de tuin
Veel tuinkamers ogen zwaar of schuurachtig en hebben te weinig relatie met het groen, terwijl wellness vaak inefficiënt wordt ingedeeld.
Een transparante tuinkamer van glas en aluminium met grasdak, gekoppeld aan een compacte wellness in het bestaande bijgebouw met sauna, stoombad en sanitair.
Een serene ontspanningsplek aan huis met sterke binnen-buitenbeleving en een tuinintegratie die het geheel rust en kwaliteit geeft.

Eigendijdse tuinkamer met glas, aluminium en grasdak.
Glazen schuifpuien voor maximale binnen-buitenrelatie.
Vrije positionering: integratie met de tuin in plaats van tuinrand volgen.
Compacte wellness in bestaand bijgebouw: sauna, stoombad en sanitair.
Relaxruimte in de tuinkamer als verlengde van de wellness.
Elegante, lichte architectuur: geen "schuur", maar een verfijnde structuur.
Sterke ruimtelijke beleving met zicht op groen en lucht.
Wellness aan huis zonder het erf te verzwaren.



Interesse in een vergelijkbaar project?
Plan een kennismaking en ontdek wat er mogelijk is voor uw situatie.
Neem contact opMeer weten over onze aanpak voor luxe villabouw? Bekijk architect luxe villa.