
Enschede
Uitbreiding
J - Z_9028
Uitbreiding woning en schuur in het buitengebied Enschede
Een verouderde woning in het buitengebied getransformeerd met strategische uitbreidingen, een grote schuur en tuinmuren die rust, samenhang en landschappelijke richting geven.
Hoe combineer je uitbreidingen, bijgebouwen en tuin zo dat ze samen rust en samenhang brengen in het buitengebied
Losse uitbreidingen en schuren leiden vaak tot versnippering, geluidsoverlast en een onrustige erfopzet.
Een samenhangend ontwerp met strategisch geplaatste glazen uitbreidingen, functionele tuinmuren en een robuuste schuur.
Een helder georganiseerd erf met rust, privacy en een sterke relatie tussen woning, tuin en landschap.
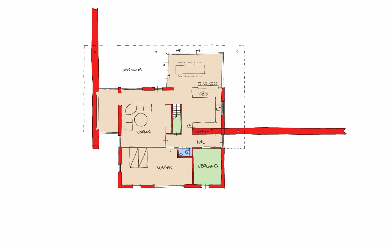
In het buitengebied is een verouderde woning uitgebreid en heringericht, gecombineerd met de toevoeging van een grote schuur. De ingreep is niet opgevat als losse onderdelen, maar als één samenhangend ensemble waarin woning, bijgebouw en tuin elkaar versterken. De woning is intern verbouwd en op twee strategische plekken voorzien van glazen uitbreidingen. Deze transparante toevoegingen brengen daglicht diep de woning in en zorgen voor een sterke relatie met de tuin, zonder het oorspronkelijke karakter te verliezen. De woning en de schuur worden met elkaar verbonden door een tuinmuur. Deze muur heeft meerdere functies: hij koppelt de gebouwen, schermt de tuin af van de naastgelegen autoweg en draagt bij aan een rustige, beschutte buitenruimte. Een tweede tuinmuur staat loodrecht op de woning en begeleidt bewust de blik en looprichting de tuin in, richting het poolhouse bij de zwemvijver. Zo ontstaat een duidelijke ruimtelijke ordening in het landschap. De schuur is vormgegeven als een klassieke, stoere Twentse schuur. Eenvoud, functionaliteit en robuustheid bepalen het beeld. Juist door deze terughoudendheid vormt de schuur een vanzelfsprekend onderdeel van het ensemble: praktisch in gebruik, krachtig in uitstraling en passend in het landelijke landschap.
Hoe combineer je uitbreidingen, bijgebouwen en tuin zo dat ze samen rust en samenhang brengen in het buitengebied
Losse uitbreidingen en schuren leiden vaak tot versnippering, geluidsoverlast en een onrustige erfopzet.
Een samenhangend ontwerp met strategisch geplaatste glazen uitbreidingen, functionele tuinmuren en een robuuste schuur.
Een helder georganiseerd erf met rust, privacy en een sterke relatie tussen woning, tuin en landschap.

Uitbreiding en verbouw van een verouderde woning.
Strategische glazen uitbreidingen voor licht en zicht.
Grote schuur als functioneel en landschappelijk element.
Tuinmuur als koppeling én geluidsbuffer naar de autoweg.
Heldere tuinstructuur met zichtlijnen richting zwembad en poolhouse.
Rust en samenhang in het erfontwerp.
Stoere Twentse schuur: eenvoud, functionaliteit en robuustheid.
Sterke integratie van bebouwing en buitenruimte.




Interesse in een vergelijkbaar project?
Plan een kennismaking en ontdek wat er mogelijk is voor uw situatie.
Neem contact opMeer weten over onze aanpak voor luxe villabouw? Bekijk architect luxe villa.