
Vreeland, aan de Vecht
Verbouw / bijgebouw
J - Z_9601
Verduurzaming en bijgebouw woning aan de Vecht, Vreeland
Verduurzaming en nieuw bijgebouw in Vreeland aan de Vecht, met 80 m2 extra woonkwaliteit.
Hoe voeg je 80 m2 toe en verduurzaam je de woning zonder de identiteit te verliezen
Beperkte ruimte en een verouderde schil zorgden voor gebrek aan comfort en logica in de plattegrond.
Nieuw bijgebouw binnen vrijstellingen, veranda als schakel, glazen gang en complete isolatie plus nieuwe kozijnen.
Meer ruimte, betere routing en wooncomfort vergelijkbaar met nieuwbouw, met behoud van karakter.
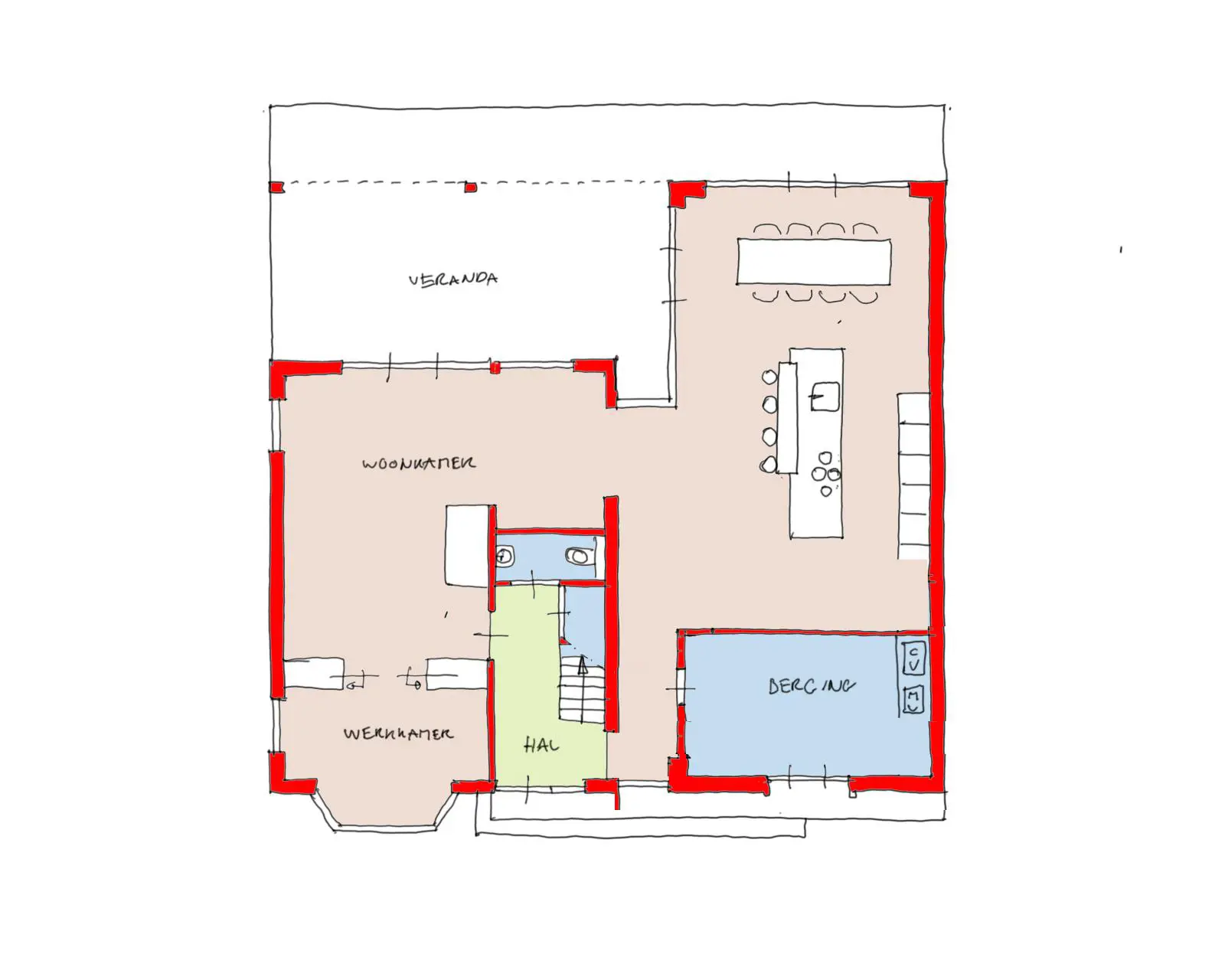
Het bestaande bijgebouw is vervangen door een groter volume dat slim gebruik maakt van vrijstellingen en het afwijkingenbeleid, zodat er 80 m2 bijgebouw kon worden gerealiseerd. Dit levert een bijkeuken, een ruime eetkeuken met contact naar woning en tuin, en een vergunningsvrije veranda die eetkeuken en woonkamer verbindt. Op de verdieping koppelt een glazen gang het bijgebouw aan de woning, met een masterbedroom, eigen sanitair en een werkkamer met uitzicht over de Vecht. De hele woning is geisoleerd en voorzien van nieuwe kozijnen, waardoor het comfort nieuwbouwniveau haalt en de uitstraling trouw blijft aan het oorspronkelijke huis. Meer over /vreeland en /regios/vechtstreek.
Hoe voeg je 80 m2 toe en verduurzaam je de woning zonder de identiteit te verliezen
Beperkte ruimte en een verouderde schil zorgden voor gebrek aan comfort en logica in de plattegrond.
Nieuw bijgebouw binnen vrijstellingen, veranda als schakel, glazen gang en complete isolatie plus nieuwe kozijnen.
Meer ruimte, betere routing en wooncomfort vergelijkbaar met nieuwbouw, met behoud van karakter.

80 m2 bijgebouw met bijkeuken en eetkeuken aan de tuin.
Vergunningsvrije veranda als buitenverbinding tussen eetkeuken en woonkamer.
Glazen gang naar masterbedroom en werkkamer met zicht op de Vecht.




Interesse in een vergelijkbaar project?
Plan een kennismaking en ontdek wat er mogelijk is voor uw situatie.
Neem contact opMeer weten over onze aanpak voor luxe villabouw? Bekijk architect luxe villa.