
Luxe villa met uitzicht in Waterrijk Woerden
Bijzondere woning ontworpen voor een unieke waterkavel met 'special'-voorwaarden: uitgesproken architectuur, maximale zichtlijnen en toekomstbestendig comfort.

Gedurfd ontwerp op een markante kavel
Op het laatste eiland van Waterrijk Woerden, op een prominente hoek aan het water, werd de laatste kavel uitgegeven onder bijzondere voorwaarden. Voor deze plek was alleen een 'special' ontwerp toegestaan: een woning met een uitgesproken architectonische identiteit, zichtbaar in vorm, materiaalgebruik en uitstraling. Ook aan de keuze van de architect werden hoge eisen gesteld - enkel ontwerpers uit de voorhoede van de hedendaagse architectuur mochten hier ontwerpen. Een bijzondere eer om dit project te realiseren, zeker omdat wij ook aan de andere punt van het eiland al een woning hebben ontworpen.
Projectcontext
Context & Vraag
De kracht van dit project zit in de combinatie van uitgesproken architectuur en contextbewust ontwerp. De kavel vroeg om een woning die 'iets durft' - maar wel klopt: in uitzicht, bezonning, privacy en materialisatie. De locatie aan het water én de mogelijkheid om hier hoger te bouwen dan elders op het eiland, maakten het mogelijk om een extra woonlaag als 'uitkijkpost' toe te voegen. Tegelijk was de randvoorwaarde helder: aan de noordzijde ligt een druk fietspad. De woning moest daarom niet alleen open zijn naar het water, maar ook geborgen aan de straatkant.
Ambities
Architecten Rol
Gerealiseerd met
Studio Valentijn
Bouw en Aannemersbedrijf Arno Spruit
Schetsen & plattegrond
Van de eerste gedachte naar een ruimtelijk principe.

Conceptschets van volumewerking en positionering op de waterkavel

Gevelschets met compositie, ritme en verhouding van open en gesloten vlakken

Schets - materialisatie en open/gesloten strategie

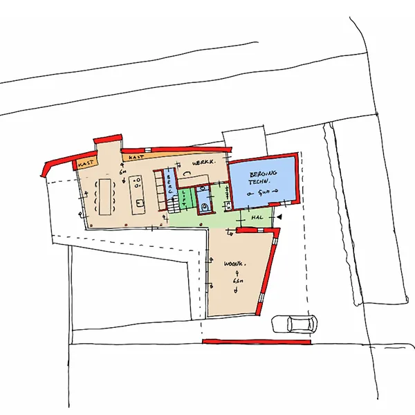
Plattegrond Principe

Optimale zichtlijnen en maximale hoogte benut
Dankzij de mogelijkheid om op deze plek hoger te bouwen dan elders op het eiland, is de woning maximaal afgestemd op het weidse uitzicht. De derde verdieping herbergt een exclusieve lounge met grote openslaande puien. Wanneer deze volledig worden geopend ontstaat een panoramisch 'terrasgevoel' - met jaarrond zicht op het water en het omliggende polderlandschap, ook bij wind en wisselend weer.

Maatwerk en toekomstbestendig comfort
Binnenin is de woning net zo doordacht. De begane grond is opgezet als een open plattegrond met keuken, eetkamer, werkkamer en woonkamer die vloeiend in elkaar overlopen. Een centrale trap en lift verbinden alle verdiepingen. Daarmee is de woning niet alleen luxueus en comfortabel, maar ook levensloopbestendig. De techniek is volledig toekomstgericht: warmtepomp, vloerverwarming en zonnepanelen - zonder concessies te doen aan uitstraling en woonkwaliteit.
Galerij van Details.






Balans tussen openheid en geborgenheid
De noordzijde van de woning, grenzend aan een druk fietspad, is bewust grotendeels gesloten gehouden. Deze gevel is bekleed met traditioneel riet - passend bij het waterrijke landschap - en vormt een spannend contrast met de moderne, open zuidzijde. Aan de waterkant zorgen grote glaspartijen en houten bekleding voor een warme, uitnodigende uitstraling, met veel zonlicht en een directe connectie met tuin en uitzicht.

Een villa met karakter en verantwoordelijkheid
Deze villa laat zien dat uitgesproken architectuur en duurzaam wonen hand in hand kunnen gaan. Door scherp te ontwerpen op de stedenbouwkundige context en de kwaliteiten van de plek, is een woning gerealiseerd die niet alleen aan de strenge 'special'-eisen voldoet, maar deze overstijgt. Een icoon op het eiland - ontworpen met visie, precisie en liefde voor het vak.
Ook interessant om te bekijken
Relevante pagina's voor dit project

Waarom een architect
Regie op visie, kosten, proces en kwaliteit vanaf de eerste keuzes.
Bekijken
Nieuwbouw villa
Van kavelanalyse en ontwerp tot vergunning en bouwbegeleiding.
Bekijken
Luxe villa bouwen
High-end villabouw met maatwerkdetails, rust en strakke procesregie.
Bekijken
Nieuw huis bouwen
Praktisch stappenplan van kavel en budget tot vergunning en realisatie.
BekijkenLees ook deze veelgestelde vragen
Wat kost een luxe villa all-in in Nederland (incl. kavel)?
Luxe villa bouwen in Nederland kost €1,5-€3 miljoen all-in. Compleet overzicht: kavel, bouw, afwerking, adviseurs en verborgen kosten per regio.
Wat kost een exclusieve villa per m2 (bouwsom)?
Exclusieve villa bouwen kost meestal EUR 4.000-EUR 6.000 per m2. Inclusief vergelijking standaard vs exclusief, kostendrivers en materiaalkeuzes.
Wanneer een architect inhuren voor nieuwbouw?
Wanneer is het juiste moment om een architect in te huren voor nieuwbouw? Voordelen van vroeg starten.
Wat kost een architect en waar betaal je eigenlijk voor?
Wat kost een architect en waar betaalt u voor? Uitleg over honorarium, begeleiding en waarom ontwerp invloed heeft op kosten en kwaliteit.
Dit project is gerealiseerd als
Vertaalde
Dromen.
Scroll horizontaal door de portfolio. Sleep of scroll naar rechts voor meer inspiratie.
Nieuwsgierig naar
andere oplossingen?
Ontdek ons volledige portfolio met gerealiseerde projecten. Van moderne villa's tot landelijke hofwoningen.




















































