
Moderne villa met rieten kap
Een volwaardige woning op een uitdagend perceel, gerealiseerd door slim gebruik van bestemmingsplan, afwijkingsbevoegdheden en vergunningsvrije ruimte.

Uitdagende randvoorwaarden als vertrekpunt
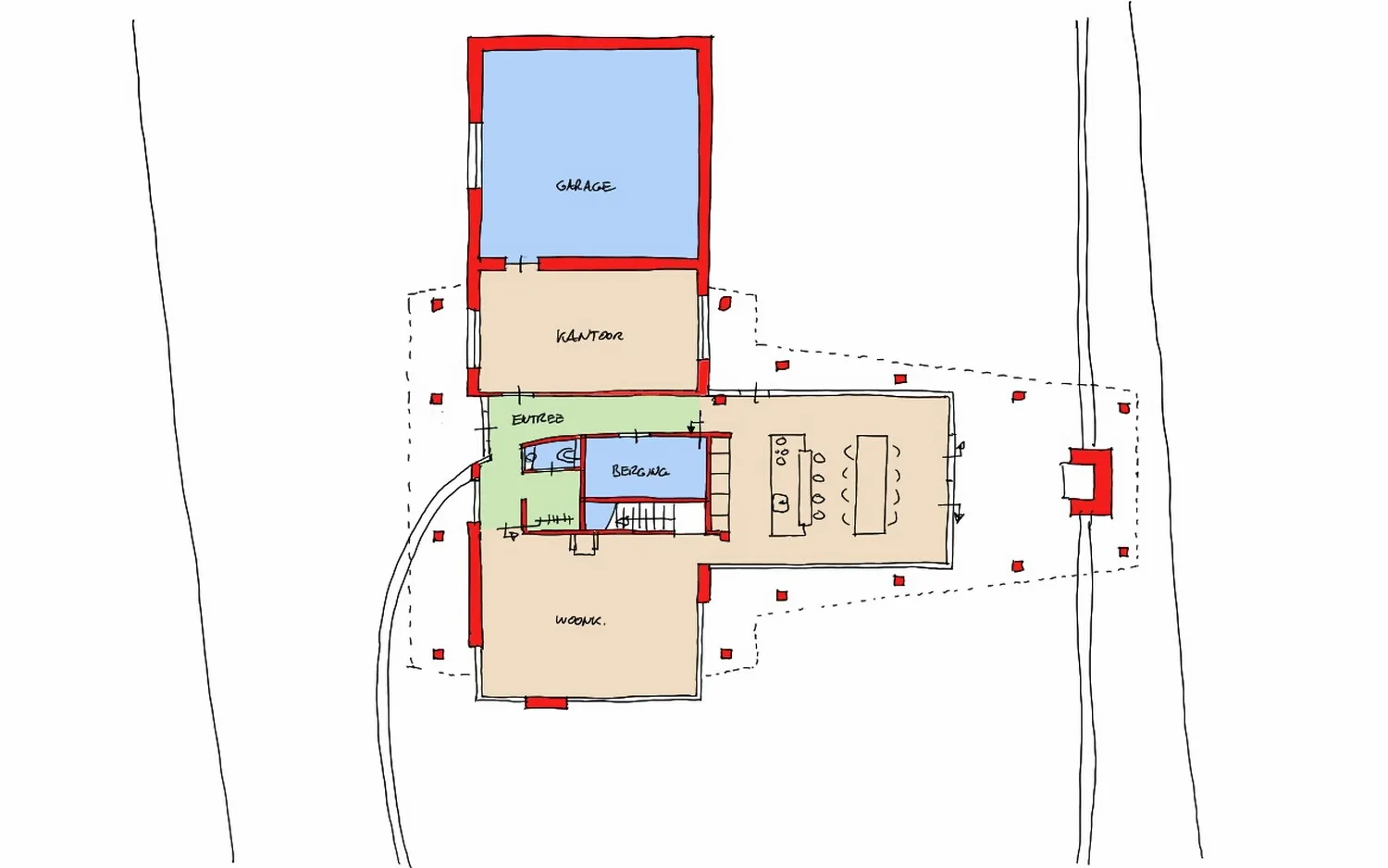
Het perceel in Kortenhoef biedt prachtige zichtlijnen richting het aangrenzende natuurgebied, maar kent ook duidelijke beperkingen. Voor de woning ligt een drukke weg en het bestemmingsplan schrijft een niet logisch gepositioneerd bouwvlak voor. Bovendien liet het bestemmingsplan slechts een bouwvlak toe van circa 54 m. Op papier een forse beperking, maar tegelijkertijd een interessante ontwerpopgave: hoe realiseer je op deze plek toch een volwaardige en comfortabele woning
Projectcontext
Context & Vraag
De combinatie van een klein bouwvlak, een drukke weg aan de voorzijde en een landschappelijk waardevolle omgeving vroeg om een ontwerp dat verder kijkt dan de standaard invulling van het bestemmingsplan.
Ambities
Architecten Rol
Gerealiseerd met
Particuliere opdrachtgever
Gemeente Wijdemeren
Welstandscommissie
[IN TE VULLEN]

Meer ruimte binnen de regels
Door slim gebruik te maken van de afwijkingsbevoegdheden die het bestemmingsplan biedt, is extra woonoppervlak toegevoegd. Daarnaast is de kap bewust ingezet als ruimtelijk instrument. Door de overstekken van het rieten dak te vergroten, ontstaat extra hoogte en daarmee meer bruikbare ruimte op de verdieping. Ook is maximaal gebruik gemaakt van de mogelijkheden die vergunningsvrij bouwen biedt. Samen zorgen deze ingrepen ervoor dat een comfortabele woning mogelijk werd, ondanks het beperkte bouwvlak.
Galerij van Details.






Indeling: wonen, werken en beschutting
Op de begane grond is ruimte gecreerd voor een riante woonkamer, een werkkamer en een berging. Centraal op het perceel ligt de eetkamer, perfect gepositioneerd op de zon en grenzend aan een veranda. Door deze strategische ligging fungeert de woning als geluidsbuffer: de eetkamer en veranda schermen de achtertuin af van het verkeersgeluid van de voorgelegen weg, waardoor aan de tuinzijde een rustige buitenruimte ontstaat.

Materialisatie: klassiek ge¯nspireerd, eigentijds vormgegeven
De materialisatie bestaat uit een klassieke combinatie van eikenhouten spanten, pleisterwerk, natuursteen en een sculpturale rieten kap. Deze elementen verwijzen subtiel naar traditioneel vormgegeven woningen uit de regio, maar zijn in een eigentijdse compositie toegepast. Het resultaat is een karakteristieke villa die vanzelfsprekend opgaat in haar omgeving en tegelijkertijd een eigen, herkenbare identiteit heeft.
Ook interessant om te bekijken
Relevante pagina's voor dit project

Waarom een architect
Regie op visie, kosten, proces en kwaliteit vanaf de eerste keuzes.
Bekijken
Nieuwbouw villa
Van kavelanalyse en ontwerp tot vergunning en bouwbegeleiding.
Bekijken
Luxe villa bouwen
High-end villabouw met maatwerkdetails, rust en strakke procesregie.
Bekijken
Nieuw huis bouwen
Praktisch stappenplan van kavel en budget tot vergunning en realisatie.
BekijkenLees ook deze veelgestelde vragen
Jaren 70 woning verbouwen naar modern: wat zijn de opties en kosten?
Jaren 70 woning verbouwen naar modern? Basis renovatie (€800-1.200/m²), complete modernisering (€1.500-2.500/m²) of transformatie (€2.500-3.500/m²).
Wanneer is vooroverleg of BOPA zinvol?
Wanneer kiest u voor vooroverleg en wanneer voor BOPA? Inclusief kansrijkheid, doorlooptijd en kostenindicatie volgens de actuele VOP-aanpak.
Hoe lang duurt een omgevingsvergunning in de praktijk?
Hoe lang duurt een omgevingsvergunning? Meestal 10-14 weken, bij complexe dossiers 20-26 weken. Inclusief vertragingsoorzaken en versneltips.
Wat kost een omgevingsvergunning in totaal?
Wat kost een omgevingsvergunning? EUR 3.000-EUR 12.000 totaal: leges, adviseurs, onderzoeken en BOPA-kosten per projecttype.
Vertaalde
Dromen.
Scroll horizontaal door de portfolio. Sleep of scroll naar rechts voor meer inspiratie.
Nieuwsgierig naar
andere oplossingen?
Ontdek ons volledige portfolio met gerealiseerde projecten. Van moderne villa's tot landelijke hofwoningen.



















































