
Moderne Rietkapvilla
Een strakke interpretatie van de Gooise villa: tijdloze klasse, maximale lichtbeleving en een discreet geintegreerd souterrain.

Architectuur met Tijdloze Klasse
Een luxe rietkapvilla in Het Gooi vraagt om meer dan 'mooie lijnen': het vraagt om begrip van de lokale esthetiek én een moderne visie op comfort en waarde. In dit ontwerp hebben we de traditionele warmte van de rietkap vertaald naar een zero-compromise compositie: strak, licht en strategisch. De kap lijkt te zweven boven een wit gestucte onderbouw, waardoor een krachtig contrast ontstaat. Het resultaat is een sculptuur van rust en precisie - ontworpen om de tand des tijds te doorstaan en een herkenbare signatuur in de regio achter te laten.
Projectcontext
Context & Vraag
De opdrachtgever zocht een villa die tegelijk Gooise klasse uitstraalt en modern functioneert: maximale lichtbeleving, privacy t.o.v. omliggende kavels en een plan dat klaar is voor de toekomst (comfort, flexibiliteit en techniek). Daarnaast vroeg de kavel om een zorgvuldige strategie rondom inkijk, bezonning en de integratie van extra programma zonder het volume 'zwaar' te maken.
Ambities
Architecten Rol
Schetsen & Analyse
Van de eerste gedachte naar een ruimtelijk principe.

Schets: eerste massaopzet rietkap - verhouding kap en onderbouw

Analyse: inkijk en bezonning als sturend diagram

Schets: gebruik maken van de locatie - zichtlijnen en positionering

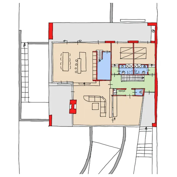
Plattegrond Principe

Strategisch Antwoord op Ruimte en Uitzicht
In de Gooise villawijken draait kwaliteit niet alleen om vierkante meters, maar om leefwaarde: privacy, uitzicht en een sterke relatie met buiten. De uitkraging van de woonlaag is hier geen stijltruc, maar een functionele ingreep: - Woonbeleving op niveau: door de leefruimtes op te tillen ontstaat een onbelemmerd panoramisch uitzicht en een vanzelfsprekende privacy t.o.v. omliggende kavels. - Verlengd buitenleven: de uitkraging maakt een royaal overdekt terras, waardoor binnen en buiten naadloos in elkaar overlopen - ook bij minder weer. U koopt geen vierkante meters; u investeert in leefkwaliteit.

Een Maatwerk Oase van Licht en Vloeiende Ruimtes
Binnen is de filosofie van integratie doorgezet: maximale glastransparantie zorgt dat het interieur de hele dag in natuurlijk licht baadt, met de tuin als continu decor. De focus ligt op open, vloeiende ruimtes en ruimtelijkheid in twee richtingen: horizontaal door lange zichtlijnen, en verticaal door de vide en plafondhoogtes. Design details: materialen uit de gevel (warm hout, strak stucwerk en natuursteen) keren terug in maatwerk interieurelementen. Een robuuste natuurstenen haard fungeert als sculpturaal ankerpunt in de leefruimte. Alles is ontworpen als één geheel - van lichtplan tot materialisatie.
Galerij van Details.







Souterrain Integratie: Discrete Luxe en Waardevastheid
De 'ware' luxe zit vaak in wat je niet direct ziet. Door de villa strategisch te verhogen, ontstond ruimte voor een volwaardig souterrain - een beproefde methode in het hogere segment om extra programma toe te voegen zonder de compositie te verzwaren. De toegang tot de keldergarage is discreet opgenomen in het landschap met natuurstenen keerwanden. Auto's verdwijnen uit het zicht en de tuin blijft maximaal bruikbaar. Het souterrain biedt daarnaast flexibiliteit: denk aan fitness, wijnkelder, atelier of thuiskantoor. In de opzet is bovendien rekening gehouden met een heldere scheiding in routes, zodat een afzonderlijke entree / aanleunoptie inpasbaar blijft.

Gebouwd voor Generaties: Duurzaamheid en Technologische Integratie
Een villa in Laren of Blaricum is een investering voor de lange termijn. Daarom is dit ontwerp niet alleen esthetisch, maar ook toekomstgericht: techniek, comfort en flexibiliteit zijn vanaf het begin meegenomen. - Duurzame waarde: integratie van moderne installatietechniek (all-electric, warmtepompconcepten, domotica) is in het ontwerp logisch voorbereid, zodat prestaties en comfort kunnen meegroeien met de eisen van de tijd. - Levensloopbestendigheid: de plattegrond is zo opgezet dat een lift (van souterrain tot verdieping) en slimme zonering mogelijk zijn, zonder concessies aan ruimtelijkheid. Kies voor een architect die technische excellentie combineert met tijdloze klasse.
Ook interessant om te bekijken
Relevante pagina's voor dit project

Waarom een architect
Regie op visie, kosten, proces en kwaliteit vanaf de eerste keuzes.
Bekijken
Nieuwbouw villa
Van kavelanalyse en ontwerp tot vergunning en bouwbegeleiding.
Bekijken
Luxe villa bouwen
High-end villabouw met maatwerkdetails, rust en strakke procesregie.
Bekijken
Nieuw huis bouwen
Praktisch stappenplan van kavel en budget tot vergunning en realisatie.
BekijkenLees ook deze veelgestelde vragen
Wat kost een luxe villa all-in in Nederland (incl. kavel)?
Luxe villa bouwen in Nederland kost €1,5-€3 miljoen all-in. Compleet overzicht: kavel, bouw, afwerking, adviseurs en verborgen kosten per regio.
Wat kost een exclusieve villa per m2 (bouwsom)?
Exclusieve villa bouwen kost meestal EUR 4.000-EUR 6.000 per m2. Inclusief vergelijking standaard vs exclusief, kostendrivers en materiaalkeuzes.
Wanneer een architect inhuren voor nieuwbouw?
Wanneer is het juiste moment om een architect in te huren voor nieuwbouw? Voordelen van vroeg starten.
Wat kost een architect en waar betaal je eigenlijk voor?
Wat kost een architect en waar betaalt u voor? Uitleg over honorarium, begeleiding en waarom ontwerp invloed heeft op kosten en kwaliteit.
Dit project is gerealiseerd als
Vertaalde
Dromen.
Scroll horizontaal door de portfolio. Sleep of scroll naar rechts voor meer inspiratie.
Nieuwsgierig naar
andere oplossingen?
Ontdek ons volledige portfolio met gerealiseerde projecten. Van moderne villa's tot landelijke hofwoningen.



















































