
Rigoureuze facelift rietkapvilla
Van introvert naar extravert: een traditionele villa getransformeerd naar een luxe landhuis met markante dwarskap, panoramische noordgevel en materiaalharmonie.

Van introvert naar extravert
Een rigoureuze facelift met een doel: een bestaande, introverte villa transformeren naar een luxe landhuis met een helder nieuw gezicht. Door de ingrepen te concentreren op kapvorm, gevelopeningen en materialisering ontstond een woning die zich opener, royaler en vanzelfsprekender tot het landschap verhoudt. De opgave was dubbel: herkenbaarheid en allure aan de entree versterken en tegelijk functionele meters toevoegen, zonder het karakter te verliezen.
Projectcontext
Context & Vraag
Van introvert naar extravert
Ambities
Architecten Rol
Gerealiseerd met
Facelift / transformatie bestaande villa
Dwarskap + open noordgevel als ruimte- en identiteitsmaker
Riet, hout en glas met maatwerk interieurafwerking

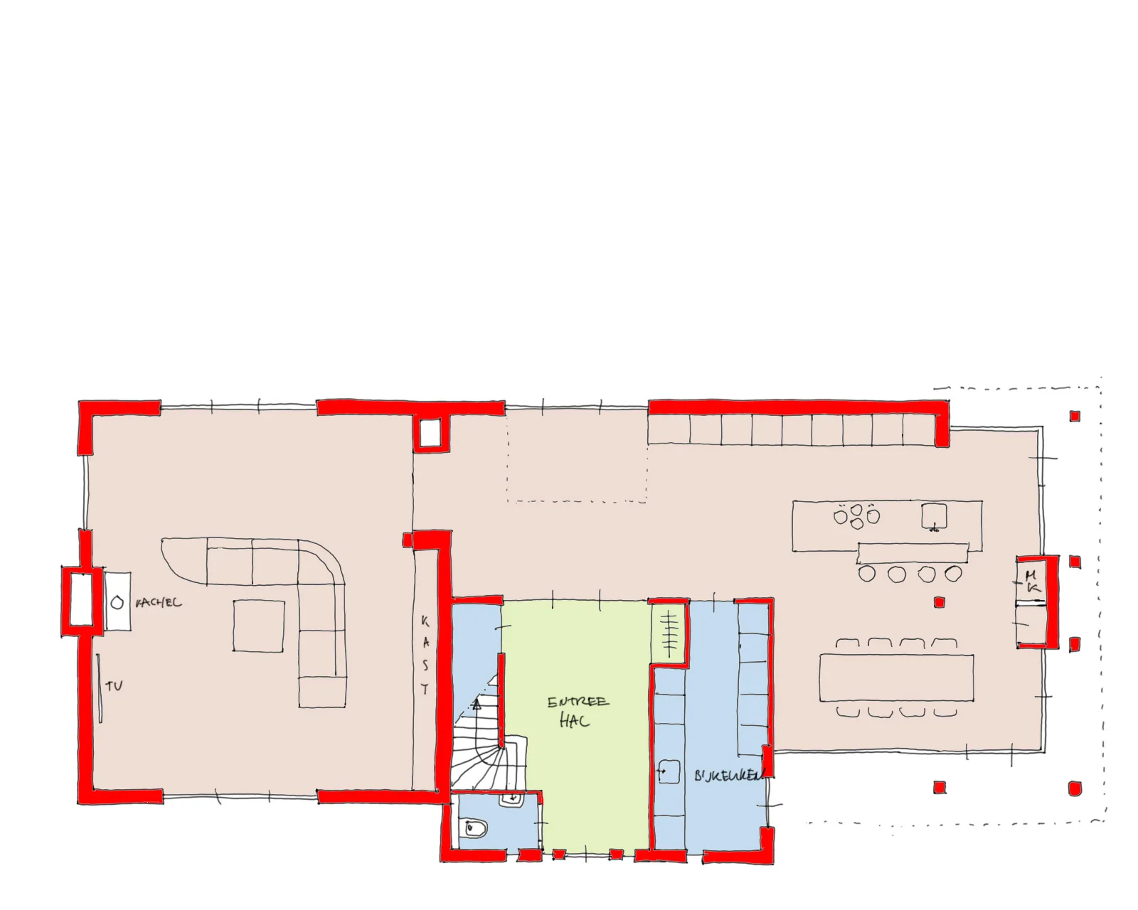
De transversale dwarskap als ruimtewinner
De uitdaging was om zowel de herkenbaarheid van de entree te vergroten als functionele meters toe te voegen. De strategische oplossing was de introductie van een markante dwarskap. Belangrijkste effecten: - Een duidelijk gemarkeerde entree die de woning een krachtig nieuw gezicht geeft - Directe ruimtewinst op de verdieping door een slimme aanpassing van de kapconstructie - Een ingreep waarbij esthetiek en woongenot consequent samen optrekken Door de kap als architectonisch instrument te gebruiken, ontstaat een luxere proportie n een functioneel betere woningindeling.

Techniek & functionaliteit: panoramisch wonen op het noorden
De noordgevel is voorzien van een indrukwekkende glazen pui die een technisch hoogstandje vormt. De pui brengt prachtig, constant licht diep in de woning zonder de hitte van direct zonlicht. Hierdoor komt het uitzicht over de weilanden op zowel de begane grond als de bovenverdieping maximaal tot zijn recht. De combinatie van moderne detailoplossingen, waardevaste principes en doordachte kelderoplossingen draagt bij aan een duurzaam en toekomstbestendig resultaat.
Galerij van Details.







Interieur & materiaalharmonie: een maatwerk oase van licht
Binnen is de beleving getransformeerd door een open plattegrond en maximale lichtinval. Het maatwerk interieur volgt de lijnen van de nieuwe rieten kap, terwijl natuurlijke materialen de verbinding met de omliggende natuur versterken. De indeling is ontworpen als een samenspel van zichtlijnen en contactmomenten, met tegelijkertijd een heldere scheiding die een afzonderlijke entree en leefruimte voor een aanleunwoning mogelijk maakt. Daarmee is de woning niet alleen luxer en ruimer, maar ook flexibeler in de tijd.

Duurzaamheid: klaar voor de toekomst
Door de schil van de woning rigoureus aan te pakken en te moderniseren, is het resultaat niet alleen esthetisch vernieuwend maar ook energiezuinig en comfortabel. Dit project laat zien hoe een rietkapvilla de perfecte balans kan vinden tussen bestaand karakter en moderne eisen. Een woning die vandaag overtuigt, en in de komende decennia een waardevaste investering blijft in woongenot en esthetiek.
Ook interessant om te bekijken
Relevante pagina's voor dit project

Waarom een architect
Regie op visie, kosten, proces en kwaliteit vanaf de eerste keuzes.
Bekijken
Verbouwing woning
Aanpak voor renovatie, herindeling en verduurzaming van bestaande woningen.
Bekijken
Villa transformatie
Wanneer transformeren, vernieuwbouwen of deels vervangen strategisch beter is.
Bekijken
Luxe villa bouwen
High-end villabouw met maatwerkdetails, rust en strakke procesregie.
BekijkenLees ook deze veelgestelde vragen
Jaren 70 woning verbouwen naar modern: wat zijn de opties en kosten?
Jaren 70 woning verbouwen naar modern? Basis renovatie (€800-1.200/m²), complete modernisering (€1.500-2.500/m²) of transformatie (€2.500-3.500/m²).
Wat kost een huis bouwen of verbouwen echt?
Wat kost een huis bouwen of verbouwen echt? Reken op EUR 2.700-4.500/m2 plus 25-35% bijkomende kosten. Inclusief voorbeelden en tabellen met bouwsom, stichtingskosten en totale investering.
Hoe kies je een betrouwbare aannemer?
Top 5 checks bij aannemerselectie: offertes vergelijken, referenties bellen, CAR/AVB controleren en meerwerkdiscussies voorkomen.
Hoe ziet een realistische bouwfasering eruit van schets tot oplevering?
Realistische tijdlijn van schets tot oplevering: meestal 1,5-2 jaar met ontwerp, vergunning, aanbesteding en uitvoering.
Dit project is gerealiseerd als
Vertaalde
Dromen.
Scroll horizontaal door de portfolio. Sleep of scroll naar rechts voor meer inspiratie.
Nieuwsgierig naar
andere oplossingen?
Ontdek ons volledige portfolio met gerealiseerde projecten. Van moderne villa's tot landelijke hofwoningen.



















































